MAISON TALO PAR FAIRMONT CONSTRUCTION

HUS

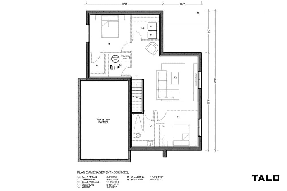
Ce petit plain-pied compact d’inspiration scandinave pourrait devenir votre nouveau havre de paix en pleine nature. Des espaces de vie à aire ouverte, deux chambres et une salle de bain complètes concentrent toutes les activités au cœur de la maison.

À l’arrière, une coquette terrasse protégée par une pergola prolonge le plaisir à l’extérieur!Le modèle Hus pourrait être le choix tout indiqué pour une première maison ou un chalet abordable au look recherché.

Le prix indiqué ci-dessus est un budget estimatif tout inclus, basé sur le modèle sélectionné et construit sur un terrain standard d’une valeur de 150 000 $.

• Finitions de base haut de gamme, incluant des planchers de bois franc.
• Comptoirs en quartz ou équivalent.


Facteurs qui augmentent le prix (Exclusions & Ajouts) :

Le prix peut augmenter selon les choix finaux du client.

• Choix d’un terrain premium :
Le budget inclut un terrain standard. Les terrains premium (ex. : topographie particulière, vues supérieures) augmenteront le coût final.

• Finitions améliorées :
Matériaux et finitions dépassant les spécifications standards (ex. : carreaux sur mesure, appareils haut de gamme).

• Éléments exclus :
Électroménagers, meubles intégrés, luminaires décoratifs, habillages de fenêtres, aménagement paysager, ainsi que tous les coûts liés au dynamitage ou à une fondation spéciale.


TOUS LES PRIX SONT À TITRE ILLUSTRATIF SEULEMENT

Ils peuvent être modifiés sans préavis et ne constituent pas une offre de vente.
Le contrat de vente final est conclu directement avec l’entrepreneur et doit être validé selon la liste de prix officielle la plus récente et les conditions spécifiques au moment de l’achat.

INFORMATIONS

CARACTÉRISTIQUES

(comprend le garage, sous-sol en option)

MAISON TALO PAR FAIRMONT CONSTRUCTION

HUS

Ce petit plain-pied compact d’inspiration scandinave pourrait devenir votre nouveau havre de paix en pleine nature. Des espaces de vie à aire ouverte, deux chambres et une salle de bain complètes concentrent toutes les activités au cœur de la maison.

À l’arrière, une coquette terrasse protégée par une pergola prolonge le plaisir à l’extérieur!Le modèle Hus pourrait être le choix tout indiqué pour une première maison ou un chalet abordable au look recherché.

Le prix indiqué ci-dessus est un budget estimatif tout inclus, basé sur le modèle sélectionné et construit sur un terrain standard d’une valeur de 150 000 $.

• Finitions de base haut de gamme, incluant des planchers de bois franc.
• Comptoirs en quartz ou équivalent.


Facteurs qui augmentent le prix (Exclusions & Ajouts) :

Le prix peut augmenter selon les choix finaux du client.

• Choix d’un terrain premium :
Le budget inclut un terrain standard. Les terrains premium (ex. : topographie particulière, vues supérieures) augmenteront le coût final.

• Finitions améliorées :
Matériaux et finitions dépassant les spécifications standards (ex. : carreaux sur mesure, appareils haut de gamme).

• Éléments exclus :
Électroménagers, meubles intégrés, luminaires décoratifs, habillages de fenêtres, aménagement paysager, ainsi que tous les coûts liés au dynamitage ou à une fondation spéciale.


TOUS LES PRIX SONT À TITRE ILLUSTRATIF SEULEMENT

Ils peuvent être modifiés sans préavis et ne constituent pas une offre de vente.
Le contrat de vente final est conclu directement avec l’entrepreneur et doit être validé selon la liste de prix officielle la plus récente et les conditions spécifiques au moment de l’achat.

INFORMATIONS

CARACTÉRISTIQUES

dOMAINE DE LA LUMIÈRE

Parlez-nous de votre projet!

Notre équipe est là pour vous écouter, vous conseiller et vous accompagner à chaque étape.
N’hésitez pas, partagez-nous vos besoins dès aujourd’hui!

Adresse

1, rue J.-Y.-Remer Sainte-Agathe-des-Monts (Québec) J8C 2Y4

Téléphone

1-833-533-7383 (REVE)

Téléphone

514 533 7383

Courriel

ventes@domainedelalumiere.com

Courriel

infos@domainedelalumiere.com

FORMULAIRE DE CONTACT

Écrivez-nous

FORMULAIRE DE CONTACT

Écrivez-nous

GALERIE

© Domaine de la Lumière – Tous droits réservés
Réalisation : grohman.ca