TALO HOME BY FAIRMONT CONSTRUCTION

NIVA

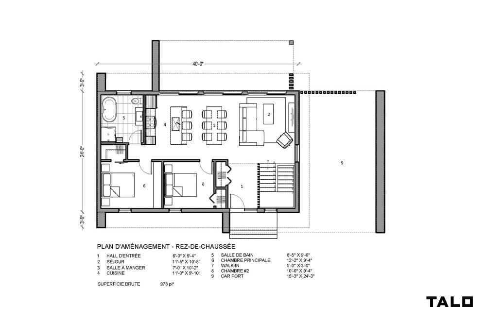
This nordic-inspired single-storey residence features a cathedral ceiling, where the main living spaces flow seamlessly and open onto abundant glazing overlooking the yard. the spacious and functional entryway is separated from the staircase by an elegant wooden slat screen, allowing for maximum natural light throughout.

The bedrooms, located on the same level at the front of the residence, ensure complete privacy for the backyard. a carport positioned along the side of the home has also been included, providing protection from the elements.

The price indicated above is an all-inclusive estimated budget based on the selected model and built on a standard lot valued at $150,000.

• High-end standard finishes, including hardwood flooring.
• Quartz countertops or equivalent.


Factors that increase the price (exclusions & add-ons):

The price may increase depending on the client’s final selections.

• Premium lot selection:
The budget includes a standard lot. Premium lots (e.g., unique topography, superior views) will increase the final cost.

• Upgraded finishes:
Materials and finishes exceeding standard specifications (e.g., custom tiles, high-end appliances).

• Excluded items:
Appliances, built-in furniture, decorative light fixtures, window treatments, landscaping, as well as any costs related to blasting or special foundation requirements.


ALL PRICES ARE FOR ILLUSTRATIVE PURPOSES ONLY

They may be modified without notice and do not constitute an offer to sell.
The final purchase agreement is entered into directly with the contractor and must be validated according to the most recent official price list and the specific conditions in effect at the time of purchase.

INFORMATIONS

FEATURES

(basement optional. carport: $60,000 additional)

Contact Form

Get in Touch

TALO HOME BY FAIRMONT CONSTRUCTION

NIVA

This nordic-inspired single-storey residence features a cathedral ceiling, where the main living spaces flow seamlessly and open onto abundant glazing overlooking the yard. the spacious and functional entryway is separated from the staircase by an elegant wooden slat screen, allowing for maximum natural light throughout.

The bedrooms, located on the same level at the front of the residence, ensure complete privacy for the backyard. a carport positioned along the side of the home has also been included, providing protection from the elements.

The price indicated above is an all-inclusive estimated budget based on the selected model and built on a standard lot valued at $150,000.

• High-end standard finishes, including hardwood flooring.
• Quartz countertops or equivalent.


Factors that increase the price (exclusions & add-ons):

The price may increase depending on the client’s final selections.

• Premium lot selection:
The budget includes a standard lot. Premium lots (e.g., unique topography, superior views) will increase the final cost.

• Upgraded finishes:
Materials and finishes exceeding standard specifications (e.g., custom tiles, high-end appliances).

• Excluded items:
Appliances, built-in furniture, decorative light fixtures, window treatments, landscaping, as well as any costs related to blasting or special foundation requirements.


ALL PRICES ARE FOR ILLUSTRATIVE PURPOSES ONLY

They may be modified without notice and do not constitute an offer to sell.
The final purchase agreement is entered into directly with the contractor and must be validated based on the most recent official price list and the specific conditions in effect at the time of purchase.

INFORMATIONS

FEATURES

DOMAINE DE LA LUMIÈRE

Tell us about your project!

Our team is here to listen, advise, and support you every step of the way.
Don’t hesitate—share your needs with us today!

Address

1, rue J.-Y.-Remer Sainte-Agathe-des-Monts (Québec) J8C 2Y4

Phone

1-833-533-7383 (REVE)

Phone

514 533 7383

Email

sales@domainedelalumiere.com

Email

infos@domainedelalumiere.com

Contact Form

Get in Touch

GALLERY

© Domaine de la Lumière – All rights reserved
Production: grohman.ca