TALO HOME BY FAIRMONT CONSTRUCTION

HUDSON

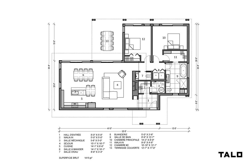
This single-storey home, inspired by a modern mono-pitch chalet design, stands out with its expansive living area built on a concrete slab.

Its layout, designed to maximize shared living areas, provides a thoughtful separation to ensure bedroom privacy. the main living space extends lengthwise and flows outdoors onto a partially covered terrace.

The price indicated above is an all-inclusive estimated budget based on the selected model and built on a standard lot valued at $150,000.

• High-end standard finishes, including hardwood flooring.
• Quartz countertops or equivalent.


Factors that increase the price (exclusions & add-ons):

The price may increase depending on the client’s final selections.

• Premium lot selection:
The budget includes a standard lot. Premium lots (e.g., unique topography, superior views) will increase the final cost.

• Upgraded finishes:
Materials and finishes exceeding standard specifications (e.g., custom tiles, high-end appliances).

• Excluded items:
Appliances, built-in furniture, decorative light fixtures, window treatments, landscaping, as well as any costs related to blasting or special foundation requirements.


ALL PRICES ARE FOR ILLUSTRATIVE PURPOSES ONLY

They may be modified without notice and do not constitute an offer to sell.
The final purchase agreement is entered into directly with the contractor and must be validated according to the most recent official price list and the specific conditions in effect at the time of purchase.

INFORMATIONS

FEATURES

Contact Form

Get in Touch

TALO HOME BY FAIRMONT CONSTRUCTION

HUDSON

This single-storey home, inspired by a modern mono-pitch chalet design, stands out with its expansive living area built on a concrete slab.

Its layout, designed to maximize shared living areas, provides a thoughtful separation to ensure bedroom privacy. the main living space extends lengthwise and flows outdoors onto a partially covered terrace.

The price indicated above is an all-inclusive estimated budget based on the selected model and built on a standard lot valued at $150,000.

• High-end standard finishes, including hardwood flooring.
• Quartz countertops or equivalent.


Factors that increase the price (exclusions & add-ons):

The price may increase depending on the client’s final selections.

• Premium lot selection:
The budget includes a standard lot. Premium lots (e.g., unique topography, superior views) will increase the final cost.

• Finitions améliorées :
Matériaux et finitions dépassant les spécifications standards (ex. : carreaux sur mesure, appareils haut de gamme).

• Upgraded finishes:
Materials and finishes exceeding standard specifications (e.g., custom tiles, high-end appliances).


ALL PRICES ARE FOR ILLUSTRATIVE PURPOSES ONLY

They may be modified without notice and do not constitute an offer to sell.
The final purchase agreement is entered into directly with the contractor and must be validated in accordance with the most recent official price list and the specific conditions in effect at the time of purchase.

INFORMATIONS

FEATURES

DOMAINE DE LA LUMIÈRE

Tell us about your project!

Our team is here to listen, advise, and support you every step of the way.
Don’t hesitate—share your needs with us today!

Address

1, rue J.-Y.-Remer Sainte-Agathe-des-Monts (Québec) J8C 2Y4

Phone

1-833-533-7383 (REVE)

Phone

514 533 7383

Email

sales@domainedelalumiere.com

Email

infos@domainedelalumiere.com

Contact Form

Get in Touch

GALLERY

© Domaine de la Lumière – All rights reserved
Production: grohman.ca